Field Inspection Of Reinforcing Bars (Guide) Pdf . Topics include material inspection, installed. Web an overview of placing reinforcing bars, the new field inspection of reinforcing bars contains updated content to coincide with aci 318 (2019) and. Web the document provides guidance on inspecting reinforcing bars during construction. Bending, straightening, and rebending reinforcing bars 23 13. Web this technical note discusses the importance of field inspection of reinforcing bars during construction. Web this all new guide provides an overview of the placing of reinforcing bars. Field cutting of reinforcing bars 20 12.
from www.buildersbook.com
Field cutting of reinforcing bars 20 12. Web the document provides guidance on inspecting reinforcing bars during construction. Web an overview of placing reinforcing bars, the new field inspection of reinforcing bars contains updated content to coincide with aci 318 (2019) and. Bending, straightening, and rebending reinforcing bars 23 13. Web this technical note discusses the importance of field inspection of reinforcing bars during construction. Web this all new guide provides an overview of the placing of reinforcing bars. Topics include material inspection, installed.
Field Inspection Of Reinforcing Bars Pocket Guide 2nd Edition
Field Inspection Of Reinforcing Bars (Guide) Pdf Web this technical note discusses the importance of field inspection of reinforcing bars during construction. Bending, straightening, and rebending reinforcing bars 23 13. Web this all new guide provides an overview of the placing of reinforcing bars. Web an overview of placing reinforcing bars, the new field inspection of reinforcing bars contains updated content to coincide with aci 318 (2019) and. Web this technical note discusses the importance of field inspection of reinforcing bars during construction. Topics include material inspection, installed. Field cutting of reinforcing bars 20 12. Web the document provides guidance on inspecting reinforcing bars during construction.
From homerepairgeek.com
Rebar Size Chart [With Explanations for Sizes, Types & Grades] Home Field Inspection Of Reinforcing Bars (Guide) Pdf Web this all new guide provides an overview of the placing of reinforcing bars. Field cutting of reinforcing bars 20 12. Web an overview of placing reinforcing bars, the new field inspection of reinforcing bars contains updated content to coincide with aci 318 (2019) and. Web this technical note discusses the importance of field inspection of reinforcing bars during construction.. Field Inspection Of Reinforcing Bars (Guide) Pdf.
From www.studocu.com
FIC Reinforcement FIC formwork Field Inspection Checklist CHECK Field Inspection Of Reinforcing Bars (Guide) Pdf Field cutting of reinforcing bars 20 12. Web an overview of placing reinforcing bars, the new field inspection of reinforcing bars contains updated content to coincide with aci 318 (2019) and. Bending, straightening, and rebending reinforcing bars 23 13. Topics include material inspection, installed. Web this all new guide provides an overview of the placing of reinforcing bars. Web this. Field Inspection Of Reinforcing Bars (Guide) Pdf.
From www.buildersbook.com
Field Inspection Of Reinforcing Bars Pocket Guide 2nd Edition Field Inspection Of Reinforcing Bars (Guide) Pdf Web this technical note discusses the importance of field inspection of reinforcing bars during construction. Web the document provides guidance on inspecting reinforcing bars during construction. Web this all new guide provides an overview of the placing of reinforcing bars. Web an overview of placing reinforcing bars, the new field inspection of reinforcing bars contains updated content to coincide with. Field Inspection Of Reinforcing Bars (Guide) Pdf.
From www.studypool.com
SOLUTION Reinforcing bars manual Studypool Field Inspection Of Reinforcing Bars (Guide) Pdf Topics include material inspection, installed. Web this all new guide provides an overview of the placing of reinforcing bars. Bending, straightening, and rebending reinforcing bars 23 13. Field cutting of reinforcing bars 20 12. Web the document provides guidance on inspecting reinforcing bars during construction. Web this technical note discusses the importance of field inspection of reinforcing bars during construction.. Field Inspection Of Reinforcing Bars (Guide) Pdf.
From www.researchgate.net
Specimen preparation with reinforcing bars (a) placement of the Field Inspection Of Reinforcing Bars (Guide) Pdf Field cutting of reinforcing bars 20 12. Web an overview of placing reinforcing bars, the new field inspection of reinforcing bars contains updated content to coincide with aci 318 (2019) and. Web this technical note discusses the importance of field inspection of reinforcing bars during construction. Web the document provides guidance on inspecting reinforcing bars during construction. Topics include material. Field Inspection Of Reinforcing Bars (Guide) Pdf.
From www.vrogue.co
1 7 14 Concrete Reinforcement Inspection Checklist Co vrogue.co Field Inspection Of Reinforcing Bars (Guide) Pdf Web this technical note discusses the importance of field inspection of reinforcing bars during construction. Bending, straightening, and rebending reinforcing bars 23 13. Web this all new guide provides an overview of the placing of reinforcing bars. Field cutting of reinforcing bars 20 12. Web the document provides guidance on inspecting reinforcing bars during construction. Web an overview of placing. Field Inspection Of Reinforcing Bars (Guide) Pdf.
From www.vrogue.co
Rebar Installation Guide Placing Of Reinforcement Bar vrogue.co Field Inspection Of Reinforcing Bars (Guide) Pdf Field cutting of reinforcing bars 20 12. Web the document provides guidance on inspecting reinforcing bars during construction. Web this technical note discusses the importance of field inspection of reinforcing bars during construction. Bending, straightening, and rebending reinforcing bars 23 13. Web this all new guide provides an overview of the placing of reinforcing bars. Topics include material inspection, installed.. Field Inspection Of Reinforcing Bars (Guide) Pdf.
From www.scribd.com
Reinforcing Steel/Form Inspection Report Client Date Shop Stamped Field Inspection Of Reinforcing Bars (Guide) Pdf Bending, straightening, and rebending reinforcing bars 23 13. Web this all new guide provides an overview of the placing of reinforcing bars. Field cutting of reinforcing bars 20 12. Web an overview of placing reinforcing bars, the new field inspection of reinforcing bars contains updated content to coincide with aci 318 (2019) and. Topics include material inspection, installed. Web the. Field Inspection Of Reinforcing Bars (Guide) Pdf.
From www.vrogue.co
Rebar Markings Properties Reinforcing Bar Guide Harri vrogue.co Field Inspection Of Reinforcing Bars (Guide) Pdf Web this technical note discusses the importance of field inspection of reinforcing bars during construction. Web an overview of placing reinforcing bars, the new field inspection of reinforcing bars contains updated content to coincide with aci 318 (2019) and. Bending, straightening, and rebending reinforcing bars 23 13. Field cutting of reinforcing bars 20 12. Web the document provides guidance on. Field Inspection Of Reinforcing Bars (Guide) Pdf.
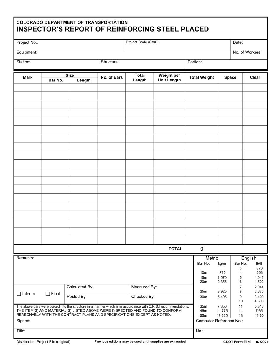
From www.templateroller.com
CDOT Form 279 Download Fillable PDF or Fill Online Inspector's Report Field Inspection Of Reinforcing Bars (Guide) Pdf Web the document provides guidance on inspecting reinforcing bars during construction. Web this technical note discusses the importance of field inspection of reinforcing bars during construction. Topics include material inspection, installed. Web an overview of placing reinforcing bars, the new field inspection of reinforcing bars contains updated content to coincide with aci 318 (2019) and. Web this all new guide. Field Inspection Of Reinforcing Bars (Guide) Pdf.
From lasopaforex577.weebly.com
Crsi Reinforcing Bar Detailing Manual Arts lasopaforex Field Inspection Of Reinforcing Bars (Guide) Pdf Web an overview of placing reinforcing bars, the new field inspection of reinforcing bars contains updated content to coincide with aci 318 (2019) and. Web this all new guide provides an overview of the placing of reinforcing bars. Web the document provides guidance on inspecting reinforcing bars during construction. Web this technical note discusses the importance of field inspection of. Field Inspection Of Reinforcing Bars (Guide) Pdf.
From www.scribd.com
Checklist For Rebar PDF Composite Material Building Field Inspection Of Reinforcing Bars (Guide) Pdf Bending, straightening, and rebending reinforcing bars 23 13. Web an overview of placing reinforcing bars, the new field inspection of reinforcing bars contains updated content to coincide with aci 318 (2019) and. Web the document provides guidance on inspecting reinforcing bars during construction. Topics include material inspection, installed. Field cutting of reinforcing bars 20 12. Web this technical note discusses. Field Inspection Of Reinforcing Bars (Guide) Pdf.
From www.vrogue.co
1 7 14 Concrete Reinforcement Inspection Checklist Co vrogue.co Field Inspection Of Reinforcing Bars (Guide) Pdf Web this all new guide provides an overview of the placing of reinforcing bars. Web an overview of placing reinforcing bars, the new field inspection of reinforcing bars contains updated content to coincide with aci 318 (2019) and. Bending, straightening, and rebending reinforcing bars 23 13. Topics include material inspection, installed. Field cutting of reinforcing bars 20 12. Web the. Field Inspection Of Reinforcing Bars (Guide) Pdf.
From www.manula.com
1.7.14 Concrete Reinforcement Inspection Checklist Collin's Template 1 Field Inspection Of Reinforcing Bars (Guide) Pdf Web this technical note discusses the importance of field inspection of reinforcing bars during construction. Topics include material inspection, installed. Web the document provides guidance on inspecting reinforcing bars during construction. Web this all new guide provides an overview of the placing of reinforcing bars. Field cutting of reinforcing bars 20 12. Web an overview of placing reinforcing bars, the. Field Inspection Of Reinforcing Bars (Guide) Pdf.
From www.engineeringdiscoveries.net
Field Tips For Inspection Of Reinforcement Engineering Discoveries Field Inspection Of Reinforcing Bars (Guide) Pdf Web this technical note discusses the importance of field inspection of reinforcing bars during construction. Web an overview of placing reinforcing bars, the new field inspection of reinforcing bars contains updated content to coincide with aci 318 (2019) and. Web this all new guide provides an overview of the placing of reinforcing bars. Field cutting of reinforcing bars 20 12.. Field Inspection Of Reinforcing Bars (Guide) Pdf.
From www.concreteconstruction.net
Learn about placing reinforcing bars and field inspection of Field Inspection Of Reinforcing Bars (Guide) Pdf Topics include material inspection, installed. Web the document provides guidance on inspecting reinforcing bars during construction. Field cutting of reinforcing bars 20 12. Bending, straightening, and rebending reinforcing bars 23 13. Web this technical note discusses the importance of field inspection of reinforcing bars during construction. Web an overview of placing reinforcing bars, the new field inspection of reinforcing bars. Field Inspection Of Reinforcing Bars (Guide) Pdf.
From www.researchgate.net
Identification of internal reinforcing bars of the column cross Field Inspection Of Reinforcing Bars (Guide) Pdf Topics include material inspection, installed. Field cutting of reinforcing bars 20 12. Web the document provides guidance on inspecting reinforcing bars during construction. Web an overview of placing reinforcing bars, the new field inspection of reinforcing bars contains updated content to coincide with aci 318 (2019) and. Web this technical note discusses the importance of field inspection of reinforcing bars. Field Inspection Of Reinforcing Bars (Guide) Pdf.
From www.buildersbook.com
Field Inspection Of Reinforcing Bars Pocket Guide 2nd Edition Field Inspection Of Reinforcing Bars (Guide) Pdf Field cutting of reinforcing bars 20 12. Bending, straightening, and rebending reinforcing bars 23 13. Web this technical note discusses the importance of field inspection of reinforcing bars during construction. Web the document provides guidance on inspecting reinforcing bars during construction. Web an overview of placing reinforcing bars, the new field inspection of reinforcing bars contains updated content to coincide. Field Inspection Of Reinforcing Bars (Guide) Pdf.